2, Schützenstraße, Bad Vilbel, Wetteraukreis, Hessen, 61118, Deutschland







2, Schützenstraße, Bad Vilbel, Wetteraukreis, Hessen, 61118, Deutschland
This mixed-use residential and commercial building is located at Schützenstraße 2, 61118 Bad Vilbel, in a central position within the city. The property includes five residential units and one commercial unit (medical practice) and is offered as a structured income-producing asset with partial vacancy upside.
Address: Schützenstraße 2, 61118 Bad Vilbel, Germany
Property Type: Residential and Commercial Building
Units: 5 Residential Units | 1 Commercial Unit
Purchase Price: €1,080,000
Net annual rent (current): approx. €55,000
The building is arranged across three full floors plus a fully developed basement with practical utility and storage rooms. The residential portion consists of five furnished apartments. The commercial component is a medical practice on the ground floor, currently let.
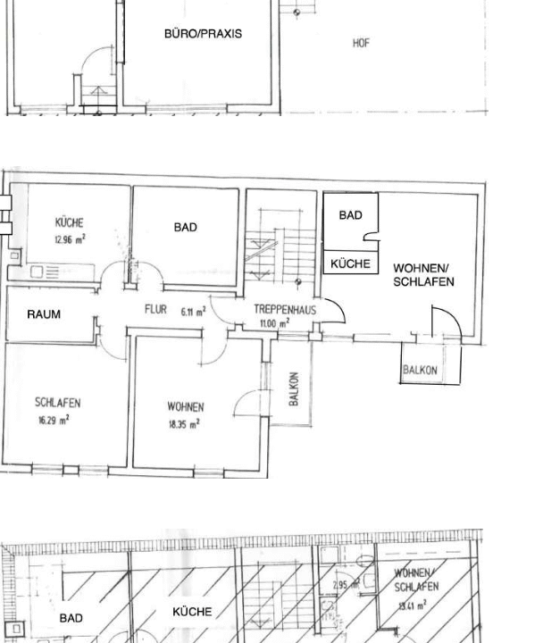
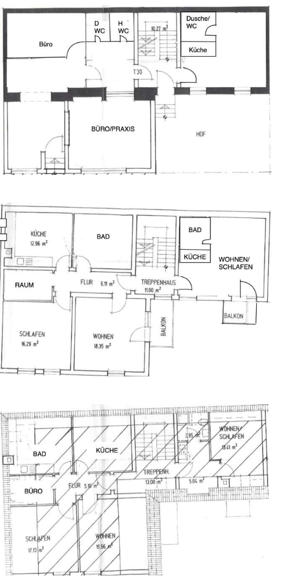
Ground Floor (EG):
A separate commercial unit currently used as a medical practice. The unit is easily accessible from street level and clearly separated from the residential areas above. The commercial space has a total area of approximately 70 m² and includes functional service rooms and sanitary facilities.
First Floor (1st Floor):
The first floor is fully dedicated to residential use and comprises part of the total five residential units. The apartments are accessed via a central stairwell and are equipped with modern kitchens and furnishings, allowing for immediate use or rental.
Second Floor (2nd Floor):
The second floor continues the residential use and completes the building’s housing concept. The apartments on this level are also fully furnished, functionally laid out, and form part of the total residential floor area.
Basement:
The basement level is fully developed and contains utility and technical rooms that support the operation of the building. No residential use is allocated to this level.
A key operational feature is the furnished setup: each apartment is offered as fully equipped, including furnishings, a fitted kitchen, and a flat-screen TV, supporting immediate tenant usability and streamlined letting.
The total lettable area is approximately 263 m², consisting of:
Residential area: approx. 193 m²
Commercial area: approx. 70 m²
Core refurbishment (full renovation): 2015
Additional minor works (roof and basement): 2025
Bad Vilbel is positioned northeast of Frankfurt am Main and is known for stable residential demand within the Rhine-Main area. The property is described as centrally located, with the city center reachable within a few minutes on foot.
Approx. 5 minutes’ walk to public transport
Approx. 3 minutes by car to Bad Vilbel station
Approx. 3 minutes by car to the nearest motorway access
Nearby daily infrastructure incl. supermarkets, bakeries, and local retail; schools, childcare, and doctors in the surrounding area
This property represents a solid investment opportunity in a desirable location within the Frankfurt metropolitan area. The combination of residential and commercial use, modernized condition, and efficient layout provides a strong foundation for stable long-term returns.
Anbieter: Herr Kamalakannan M, Neil-Armstrong-Straße 3a, 63457 HANAU, Mobil: 0176 73929326
Tauchen Sie ein in das bezaubernde Ambiente unserer Häuser. Buchen Sie eine personalisierte Tourum die exquisite Schönheit und die einzigartigen Merkmale unseres Anwesens zu erkunden.
Unser kompetentes Personal führt Sie durch das Anwesen und beantwortet alle Ihre Fragen.
1.450.000€
Hinzugefügt: 01.10.2025